All to blame for encroachments on over 1,016-acre Gutter Baghicha

All to blame for encroachments on over 1,016-acre Gutter Baghicha

Oonib Azam
January 17, 2022


This is the story of how Karachi lost the largest urban green space of Asia — the one that was bigger than the grand Central Park in New York — to various kinds of encroachments under the patronage of various political mafias over decades.

In the late 18th century, the city had a sewage farm, Gutter Baghicha, comprising 1,016 acres. The farm land was acquired by the British after they invaded the city and it was later handed over to the Karachi municipality.

For several years after Partition, the land was used for cultivation. However, as political parties resorted to land grabbing and lawmakers started colluding with lawbreakers, the land became the centre of attention of land grabbers.

Eventually, more than half of its area was carved out for slum dwellings, an industrial area and housing societies mostly under the watch of two political parties — the Pakistan Peoples Party (PPP) and Muttahida Qaumi Movement (MQM).

The past

The 1892 map of the Karachi municipality shows the Gutter Baghicha as the plot No K 28/108 stretching over 1016.76 acres. This plot and its surrounding areas were transferred to the Karachi municipality by the British Crown free of charge.

Located in Site Town along the Manghopir Road, the Gutter Baghicha is still technically a public amenity space for park. The appellation of 'gutter' actually originated from storm drainage channels of the Lyari River known as the Shone Drainage System. The Shone Pneumatic Sewage Ejector was part of a comprehensive sewage conveyance system that attracted attention in Europe in 1887.

A 1946 map of the Gutter Baghicha shows plotting of farms on the land and its adjacent cemeteries - Maps courtesy Shehri
A 1946 map of the Gutter Baghicha shows plotting of farms on the land and its adjacent cemeteries - Maps courtesy Shehri

The sewage farm ran along the west of the Lyari River and a drainage system was laid here in 1895. There were six ejector pumps through which sewage was carried to the farm, which was its outfall, says a non-governmental organisation, Shehri- Citizens for a Better Environment (Shehri-CBE) that has waged a legal war against the encroachments on the Gutter Baghicha land for past 28 years.

Shehri – CBE’s Amber Ali Bhai told The News how these channels also took the sewage originating in the adjoining constructed areas which was then used to grow cereals, mango and coconut trees, fodder and vegetables. “Karachi is a flat land,” she said, adding that the British installed the ejector system which moves the sewage water up and down and help throw it on land for cultivation after separating sludge from it.

In 1961, the Karachi Development Authority (KDA) installed a sewage treatment plant in the Gutter Baghicha, which is non-functional since decades due to the Sindh Industrial Trading Estate’s (SITE) encroachment on the farm land.

At the time of Partition, the land was considered the largest urban forest in Karachi as apart from its cultivated area, there were also large tracts of natural vegetation. Before the British, the farm land is said to be owned by an Afghan royal named Sardar Sher Ali Khan. A 1922 map of Karachi shows a village named after Sher Ali in the area. Another map of 1946 shows a mansion (Haveli) of Sher Ali on the land, which still exists today as a maternity home under the administrative control of the Karachi Metropolitan Corporation (KMC).

After Partition, various katchi abadis like Asif Colony, Zubair Colony, Hasrat Mohani Colony and Wilayatabad were established on the Gutter Baghicha land near Old Golimar to settle migrants coming from India.

These colonies were never relocated. On March 5, 1983, through a resolution under the martial law order, the KMC regularised all such settlements.

When The News recently visited these colonies, several small-scale marble factories had sprung up which dump their waste on the Gutter Baghicha land, adding to barrenness of the land.

The present

Despite the Chapter 19 of the Karachi Building Town Planning and Regulation 2002 clearly stating that spaces reserved for parks and playgrounds cannot not be converted for any other amenity purpose or any other use, more than half of the area of the Gutter Baghicha was allocated by various authorities in various times for industries, residential societies and shanty towns.

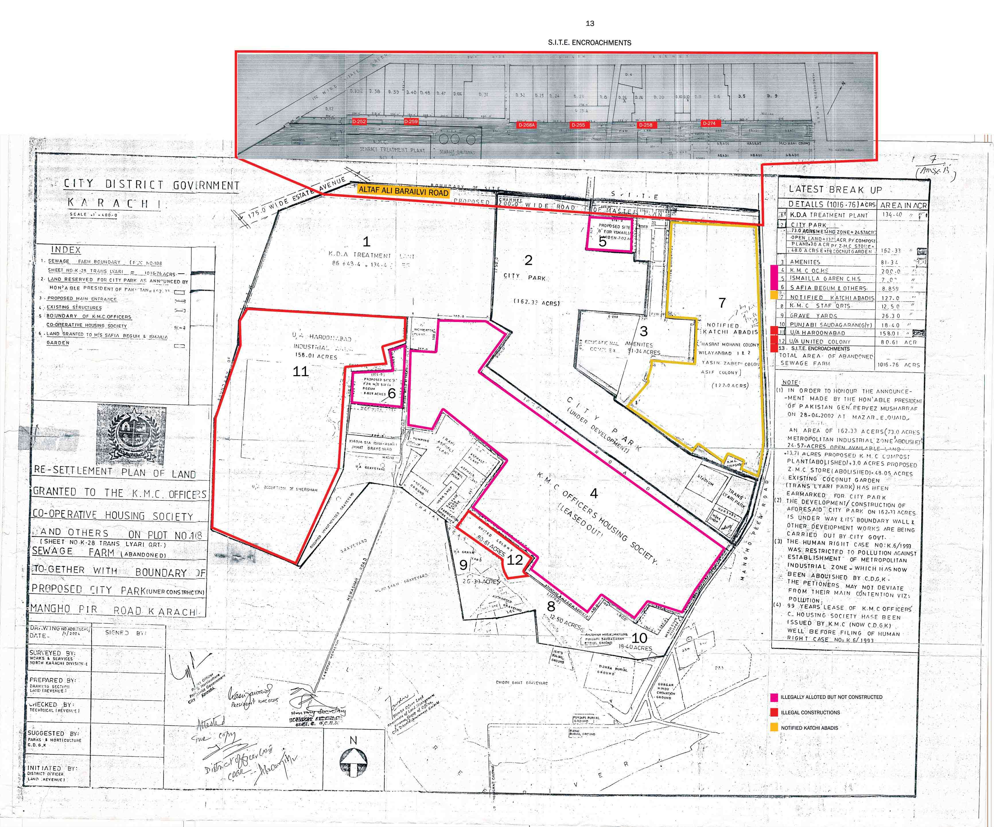
Details of various encroachments and notified residential colonies on the Gutter Baghica on a 2008 map.
Details of various encroachments and notified residential colonies on the Gutter Baghica on a 2008 map.

Currently what is left of this Baghicha is approximately 480 acres. The rest fell prey to the greed of government agencies and land grabbers operating under the umbrella of major political parties of the port city and the province that allowed encroachments in a bid to strengthen their vote bank, and mint money.

Following are details of how the vast land of the Gutter Baghicha was reduced to less than half since 1989.

SITE encroachments

As per the documents available with The News, the first encroachment on the land was made by the SITE in 1989 when two plots D/259 and D/274 were carved out measuring 1 and 0.17 acres respectively.

By 1992, eight more plots had been leased out illegally by SITE to different factories, which exist till date. These allotments were made on the part of the Gutter Baghicha on Altaf Ali Barailvi Road. At that time, the Karachi mayor was MQM’s Farooq Sattar and there was a coalition government of the PPP and MQM in Sindh with SITE under a provincial ministry.

Photos by Oonib Azam.
Photos by Oonib Azam.

It was not that the transgressions of SITE went unnoticed. In a letter written in February 1998 by then Karachi Metropolitan Corporation (KMC) municipal commissioner to the local government secretary, then SITE managing director (MD) was accused of encroaching upon KMC land and leasing it out to 10 different parties. “It was directly or indirectly confirmed that the land in question belongs to KMC and allotment made by the SITE authorities are illegal and liable to be cancelled,” the letter read.

Later, a meeting was held in May 1999 on the issue of the Gutter Baghicha land, in which then SITE deputy chief engineer Muhammad Bux Soomro agreed that the industrial estate had encroached upon the KMC’s land and wrongly allotted it to different parties.

Industrial area

The industrial encroachments on the Gutter Baghicha did not end in 1990s. On December 21, 2010, then KMC administrator Fazlur Rahman approved allotment and lease of 158.01 acres of the farm land for the Haroonabad Industrial Area at the rate of Rs1,200 per square yard.

The KMC resolution approved by Rahman maintained that the Haroonabad settlement existed on the land since before 1983 where along with houses, a lot of factories operated, which justified the allotment of land for the industrial area. It was the time when the PPP and MQM again had a coalition government in Sindh, and the local government ministry was under the PPP. There was no elected mayor of the city then and the municipality was run by an administrator appointed by the provincial government.

Individual beneficiaries

Just adjacent to Haroonabad, the KMC allotted plots No 108/2 and 108/3 to Safia Begum, Gohar Yousuf, Kamran Yousuf, Muhammad Ali Adnan, Rehana Jawed, Rizwana Firdous, Dur-e- Shehwar Imtiaz, Pakeeza Amjad and Sadia Jawed through a lease deed on February 15, 1992.

The area of the two plots was around 8.859 acres. Sattar was the mayor of Karachi and the MQM was also part of an anti-PPP coalition government in Sindh with the Pakistan Muslim League-Functional (PML-F).

Ismailia Garden

During Sattar’s tenure as the mayor, the KMC in March 1992 also leased and allotted 7.02 acres of the farm land to a residential society, Ismailia Garden, through a corporation resolution No 1,384, which had been passed on November 30, 1991.

KMC officers society

On January 3, 1993, the KMC wrote a letter to then local government minister Irshad Ahmed, who belonged to the MQM-Haqiqi (MQM-H), to hand over 200 acres of the Gutter Baghicha land for the Karachi Metropolitan Corporation Officers Co-operative Housing Society (KMC-OCHS) at Rs10 per square yard.

It was the time when the MQM had resigned from the Sindh Assembly and boycotted the by-polls, during which many MPAs of the party defected to the MQM-H that formed a coalition government with the PML-F. The Sindh chief minister was Syed Muzaffar Hussain Shah.

In response to the letter, Irshad held a meeting on March 9, 1993, in which he passed an order that 200 acres of the sewage farm on Manghopir Road be granted to the KMC for the purpose of establishing a housing society at the occupancy value of Rs10 per square yard and development charges of Rs15 per square yard.

On March 11, 1993, a council resolution was passed regarding the same allotment in order to establish the KMC-OCHS.

Later, on July 25, 1993, then section officer of the KMC Muhammad Siddique Dar – who himself was one of the beneficiaries of the society - issued a letter approving the allotment of the land for the KMC-OCHS. The letter, however, shows no approval from then Sindh chief minister.

In the same fashion, on August 3, 1993, then director land KMC Syed Tanveer Ahmed Naqvi, who was also the chairman of the housing society, issued the allotment order without the approval of the CM. On the same date, then KMC assistant director land Muhammad Adil handed the land over to then KMC-OCHS honorary secretary Shafi Ansari.

On August 28, 1993, the Shehri-CBE filed a human rights case against the conversion of the Gutter Baghicha amenity land for industrial, residential and commercial use. The NGO stated that such land conversion would cause deterioration in environment.

As a result of the litigation, the Supreme Court ordered the KMC on September 14, 1993, to stop sale or transfer of lease of the land. On September 28, 1993 the apex court restrained the corporation from transferring or selling any part of the Gutter Baghicha land and the provincial government was also restrained from granting approval to the illegal KMC resolutions.

Despite that apex court order, according to the Shehri-CBE, as many as 415 sub-leases were issued by the KMC-OCHS from 1994 till 1997 in violation of the SC’s stay order.

In 1997, then Sindh chief secretary Muhammad Saeed Mehdi ordered an inquiry into the allotment of the land. As a result of the inquiry that was initiated by then anti-corruption director AD Khowaja, an FIR was registered against then KMC municipal commissioner Allauddin Sabir and other officials.

A timeline of encroachment -Infographic by Faraz Maqbool
A timeline of encroachment -Infographic by Faraz Maqbool

It was also revealed in the inquiry report that a summary was sent on April 1993 to then CM Muzaffar for the approval of the housing society. However, when the chief secretary received that summary, he remarked, “It would be unfair to convert the open park/farm into housing society. May kindly be regretted.” The summary was then not forwarded to the CM.

Later, another summary was directly floated on July 15, 1993 to the CM bypassing the chief secretary. The new summary did not refer to the old summary and chief secretary’s remarks, and the CM approved that, following which the land was leased out to the KMC-OCHS in violation of rules and regulations at throwaway prices and a 200-acre part of the amenity farm land was converted into a residential land.

Finally, at a high-level meeting in 2001, then Sindh chief secretary Muhammad Javed Ashraf Hussain issued the cancellation order of the allotment of the Gutter Baghicha land to the housing society. However, despite that clear cancellation order, the KMC continued with the allotment of plots in the society. In its January 11, 2022 order, the Supreme Court also cancelled the allotment of the Gutter Baghicha land to the KMC-OCHS.

Post-2008 encroachment

Shehri-CBE’s Tahir Sawati, who has relentlessly fought for the cause of the farm land over the years and is a resident of the area since 1960s, believes that the post-2008 encroachments on the land were a result of the tug of war between the gang war supported by the PPP and the MQM.

The Gutter Baghicha neighbours Shershah and Lyari, the traditional strongholds of the PPP, as well as Hasrat Mohani Colony and Pak Colony, which have been bastions of the MQM. In the battle between the land grabbers supported by the two parties, the farm land’s occupation continued when the PPP came into power in the federal and Sindh governments in 2008.

A view of Gutter Baghicha.
A view of Gutter Baghicha.

The MQM was part of the Sindh government then and the Karachi mayor was Mustafa Kamal, who also belonged to Muttahida.

The PPP and MQM also supported land-grabbing in a bid to settle their supporters on the land so that their electoral base was strengthened in the area.

In 2008, social activist Ardeshir Cowasjee, philanthropist Abdul Sattar Edhi, Shehri-CBE and civil society activists of the area, including the late Nisar Baloch of the Gutter Baghicha Bachao Tehreek (GBBT), approached the Sindh High Court (SHC) against the city district government Karachi (CDGK), KMC-OCHS and others over encroachments on the farm land.

On October 28, 2008, the SHC gave a status-quo order applicable to all the vacant areas of the Gutter Baghicha. However, this did not deter the land grabbers. In June 2009, a group of encroachers, according to the Shehri-CBC, under the patronage of then MQM SITE Town nazim Izhar Ahmed Khan invaded the northern part of the vacant 430 acres of the Gutter Baghicha and began constructing houses.

This encroachment was on the 163 acres designated as the National (City) Park by then city district government, now the KMC. Later, an FIR was registered on June 30, 2009, at the Pak Colony Police Station against encroachers.

On July 15, 2009, Cowasjee requested then Karachi mayor Kamal to accompany him to inspect the land-grabbing on the farm land. Kamal sent then CDGK EDO (revenue) Sajjad Hussain Abbasi to inspect the land with Cowasjee and others where they found over 50 houses being constructed under the protection of armed men within the National Park area, said the Shehri-CBE.

About one-and-a-half months after the land-grabbing, it was the KMC City Council under Kamal that attempted to provide a legal cover to this encroachment. The City Council passed a resolution No 544 on July 29, 2009 to provide plots to persons who had allegedly been displaced when Hasrat Mohani Colony — one of the Katchi Abadis established on the Gutter Baghicha around the 1960s to house migrants —was regularised in 1980s.

The resolution stated that when Hasrat Mohani Colony was regularised, around 50 percent of the residents had been displaced who should be resettled on the Gutter Baghicha.

The Shehri, however, did not agree with the KMC. On August 25, 2009, the NGO filed a contempt-of-court application against Kamal and the SITE Town nazim for violating the status quo order of October 23, 2008.

On the afternoon of November 6, 2009, GBBT’s Nisar Baloch held a press conference at the Karachi Press Club, naming Kamal and Izhar as sponsors of the encroachment on the National Park area of the Gutter Baghicha. The following day, he was shot dead on the Love Lane Bridge while crossing the Lyari River.

On January 7, 2010, Nadir Baloch, who took over the GBBT after Nisar, was also gunned down. According to Sawati, Nisar and Nadir were against both the MQM and PPP’s encroachments on the farm land and they had also been vocal against the drug mafia operating in the area.

On November 17, 2009, Izhar filed a counter-affidavit in the court, stating that the impugned land was part of Hasrat Mohani Colony, which was under the cover of the 1981 martial law order. He said that 50 per cent of Hasrat Mohani Colony dwellers displaced in 1980s were to be resettled on a priority basis in the same vicinity on open spaces.

“No amenity of whatsoever nature is disturbed or otherwise is affected by this regularisation,” Izhar maintained.

Shehri-CBE claims that then CDGK under Kamal resorted to land grabbing on the pretext of resettling displaced persons of Hasrat Mohani Colony, if they were any, after 27 years.

After the City Council resolutions, plots on the subject area were sold against receipts of the MQM’s Karachi Tanzeemi Committee at a cost of Rs150,000.

Partially constructed houses can still be observed in the area with wall chalking in support of the MQM and Pak Sarzameen Party founded by Kamal after he parted ways with the MQM.

SC decision

During the recent hearings of the Supreme Court on the issue of encroachments in Karachi, the case of the Gutter Baghicha was also heard.

The apex court in its December 27, 2021 stated, “there is no dispute that all the land of Gutter Baghicha is meant for park and its comprises 1,016 acres of land and it seems that not only the KMC has allotted 200 acres out of such land to its officers, a big portion of the land is encroached upon. Some industries have also occupied the land of Gutter Baghicha. The whole Gutter Baghicha land has to be retrieved as it is an amenity plot and meant for the park.”

The SC order also mention that the KDA treatment plant, incinerator plant, pumping station and various graveyards were part of the Gutter Baghicha.

KMC Administrator Murtaza Wahab told The News that he was bound to follow the apex court order. He explained that the SC had cancelled the allotment of the KMC-OCHS and the government would abide by the order.

As for other sorts of encroachments, he referred to the Section 39 of Special Relief Act, stating that as per the law, if any illegal structure had a registration document in its favour, it could not be demolished unilaterally and required a court decree for that.

Wahab explained if there were notified Katchi Abadis, the government would need a judicial decree to remove them from the Gutter Baghicha land. As of now, he pointed out, the court had only ordered to rescind the allotment of the KMC-OCHS.

Meanwhile, Kamal refused to comment on the issue and said that he would have to see the documents first before he could make any remark. Sattar did not respond to repeated phone calls.